Restaurant with a café and a mini-hotel, Antakalnio str., Vilnius

  • Deal Type
  • For Sell
  • Тype
  • Commercial
  • Area
  • 550 m2
  • Floors
  • 3
  • Rooms
  • 25
ЗДАНИЕ: 

- Целевое назначение - Коммерческое с административными помещениями
- Общая площадь - 574,15 кв/м
- Основная площадь - 422,79 кв/м
- Этажность - 3 этажа
- Площадь участка - 3,4 сотки
- Окна - пластиковые со стеклопакетом
- Завершенность здания - 100 %
- Фундамент - железобетонный
- Стены - кирпич
- Перекрытия - железобетонные
- Крыша - металическая
- Перегородки - кирпич
- Пол - керамическая плитка, ламинат, ковровое покрытие
- Отопление - местное/газовое
- Водопровод/канализация - городская
- Система вентиляции/кондиционирования - есть

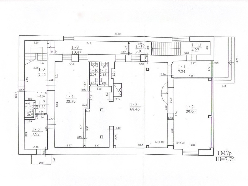
ПЕРВЫЙ ЭТАЖ ЗДАНИЯ:

- Тамбур - 7,24 кв/м
- Зал с баром - 98,36 кв/м
- Кухня - 36,51 кв/м
- Вспомогательные помещения - 3,38 кв/м
- Туалет для персонала - 1,52 кв/м
- Два туалета для посетителей - 2,08 кв/м и 2,15 кв/м
- Коридор - 7,28 кв/м
- Коридор - 7,24 кв/м
- Хозяйственное помещение - 10,47 кв/м

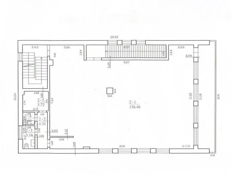
ВТОРОЙ ЭТАЖ ЗДАНИЯ:

- Главный зал - 156,46 кв/м
- Коридор - 4,31 кв/м
- Помещение - 5,72 кв/м
- Два туалета - 3,16 кв/м и 0,66 кв/м
- Терраса - 23,09 кв/м

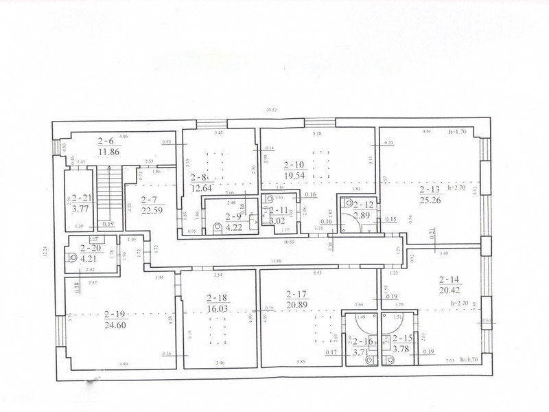
ТРЕТИЙ ЭТАЖ ЗДАНИЯ:

- Серверовочное помещение - 3,77 кв/м
- Коридор - 11,86 кв/м
- Коридор - 22,59 кв/м
- Первое помещение - 44,84 кв/м (туалет с душем - 4,21 кв/м ; комната - 24,60 кв/м; комната -16,03 кв/м) оборудованная под гостиничный номер, установленв система вентиляции-кондиционирования.
-Второе помещение - 24,60 кв/м (туалет с душем - 3,71 кв/м ; комната - 20,89 кв/м;) оборудованная под гостиничный номер, установленв система вентиляции-кондиционирования.
-Третье помещение - 24,20 кв/м (туалет с душем - 3,78 кв/м ; комната - 20,42 кв/м;) оборудованная под гостиничный номер, установленв система вентиляции-кондиционирования.
-Четвёртое помещение - 28,15 кв/м (туалет с душем - 2,89 кв/м ; комната - 25,26 кв/м;) оборудованная под гостиничный номер, установленв система вентиляции-кондиционирования.
-Пятое помещение - 22,56 кв/м (туалет с душем - 3,02 кв/м ; комната - 19,54 кв/м;) оборудованная под гостиничный номер, установленв система вентиляции-кондиционирования.
-Шестое помещение - 16,86 кв/м (туалет с душем - 4,22 кв/м ; комната - 12,64 кв/м;) оборудованная под гостиничный номер, установленв система вентиляции-кондиционирования.
  • Location:
Country:Lithuania
State:Vilnius County
City:Vilnius
Property Type:Commercial
  • Characteristics
Rooms:25
Living Area (m2):550
  • Facilities
Type of Kitchen:Kitchen-dining room, Built-in kitchen
Other Facilities:Pantry, Wardrobe, Guest WC, Laundry/dryer, Other
Security:Alarm system
Equipment:Balcony/Terrace, Air conditioning, Fireplace
Heating:Gas
Furniture:Fully
Additional Equipment:Washing machine, Fridge, Cooker, Microwave, Other

700 000 €

822 071 $
65 163 018 ₽

On the map

Other properties of this seller