Luxury apartment in Prague, 4 rooms, 187 m2

  • Deal Type
  • For Sell
  • Тype
  • Apartment
  • Area
  • 187 m2
  • Floors
  • -
  • Rooms
  • 4
www.abrupt.ru    Продается кондиционированная квартира 4 + кухня-ниша с террасой и двумя балконами с панорамным видом, открывающимся на Прагу. Квартира расположена на 4-м этаже жилого дома с лифтом. Дом находится на южном склоне в приятном и тихом районе Троя – Велка Скала (Troja - Velká Skála) в Праге 8, в пешей досягаемости аквапарка Šutka, Чимицкего гая (Čimický háj) и охраняемого природного памятникя Велка Скала, который переходит в природный парк Драгань-Троя (park Draháň-Troja).
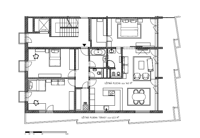
Планировка квартиры предлагает гостиную с кухней и столовой, 3 спальни (главная с большой гардеробной), 2 ванные комнаты, отдельный туалет, кладовую/техническое помещение и прихожую. Квартире принадлежит терраса, откуда открывается красивый вид на город.
Оснащение включает в себя кондиционирование воздуха, деревянный пол из массива беленного дуба, изготовленный на заказ кухонный гарнитур с каменной столешницей, винный шкаф и технику марки Miele (стеклокерамическая варочная поверхность, паровая и классическая духовка, вытяжка и два холодильника), бесфальцовые двери, пластиковые окна, наружные защитные роллеты и маркизы. Цена включает в себя 2 парковочных места в гараже и подвал.
Район предлагает близость к пражскому зоопарку и Ботаническому саду. В районе находится много спортивных площадок, в том числе теннисные залы и корты, сквош-центр, би-кроссовые дорожки, несколько футбольных клубов и спортивный центр для игры в софтбол. Вся инфраструктура, включая школы и детские сады, находится в пешей досягаемости. Две остановки на автобусе от станции метро «Кобылисы» (5 минут).
Интерьер 138,18 м2, террасы и балконы 48,5 м2, подвал около 4 м2, 2 парковочных место в гараже (одно большее).
  • Location:
Country:Czech Republic
State:Prague
City:Prague
Property Type:Apartment
Commission:12 700 €
  • Characteristics
Rooms:4
Living Area (m2):138
Total Area (m2):187

425 500 €

500 008 $
39 724 916 ₽

On the map

Other properties of this seller