Terrain for construction/Участок под застройку

  • Deal Type
  • For Sell
  • Тype
  • Plot
  • Area
  • 2000 m2
  • Floors
  • -
  • Rooms
  • -
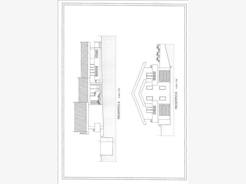
TERRAIN OF ABOUT 2000 M2 WITH THE PERMISSION FOR CONSTRUCTION OF A GROUND FLOOR HOUSE OF 130 M2, FROM WHICH THERE 40 M2 OF TECHNICAL ROOMS. IN THE BASEMENT FLOOR THERE ARE DEPOSIT ROOMS, CELLAR, LOUNDRY ROOM, STAIR - FOR ABOUT 100 M2. INTERESTING ARCHITECTURAL DESIGN. QUERCIA (OAK) STREET RESIDENTIAL AREA. SUPINO (FR). € 90,000.00 .............................................................. УЧАСТОК ЗЕМЛИ 2000 М2 С УТВЕРЖДЕННЫМ ПРОЕКТОМ ПОСТРОЙКИ ДОМА ПЛОЩАДЬЮ 230 М2: ЖИЛОЕ ПОМЕЩЕНИЕ ПЛОЩАДЬЮ 130 М2 НА ПЕРВОМ ЭТАЖЕ, ИЗ КОТОРЫХ 40 М2 ПРИХОДИТСЯ НА ВСПОМОГАТЕЛЬНЫЕ ПОМЕЩЕНИЯ, В ПОДВАЛЕ РАСПОЛАГАЮТСЯ СКЛАДСКИЕ И ТЕХНИЧЕСКИЕ ПОМЕЩЕНИЯ ПЛОЩАДЬЮ 100 М2. ИНТЕРЕСНЫЙ АРХИТЕКТУРНЫЙ ПРОЕКТ. ОБЖИТОЙ РАЙОН ЛА КВЕРЧА, СУПИНО. 90000 ЕВРО.
  • Location:
Country:Italy
State:Lazio
City:Supino
Property Type:Plot
  • Characteristics
Living Area (m2):2000
Total Area (m2):2000
Land plot (m2):2000
  • Facilities
Equipment:Garden
Window View:Mountain View, Forest View, Garden view

90 000 €

105 695 $
8 379 741 ₽

On the map

Other properties of this seller