В Вильнюсе в центре старого города предлагаются три здания

  • Deal Type
  • For Sell
  • Тype
  • Commercial
  • Area
  • 2340 m2
  • Floors
  • -
  • Rooms
  • 40
В центре старого города предлагаются три здания, объединенные в одно, находящиеся на частном земельном участке, между посольствами Франции и Австрии по адресу ул. Гаоно 4/4 (угол Шварцо и Гаоно).

Здания являются постройками XVI века, находятся под эгидой ЮНЕСКО. Имеются старинные арочные подвалы, три этажа из кирпича, мансарда,черепичная кровля,наружные    коммуникационные  системы  (водопровод, канализация,телефонизация и т.д.)

Характеристики зданий:
1)	Фундаменты - бетонные, кирпичные
2)	Стены - старинный кирпич
3)	Перекрытия - монолитные, железобетонные
4)	Кровля - черепица
5)	Окна - по восстановленному проекту XVI века, из клееной древесины и VELUX
6)	Наружные террасы, лестницы - железобетон, моно
7)	Паркинг - возможно оборудование в подвальной части здания
8)	Внутренний двор может быть оборудован стеклянной кровлей ~ 232 м2
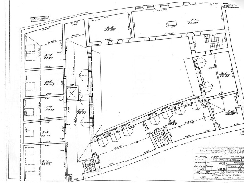
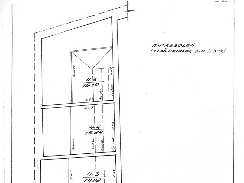
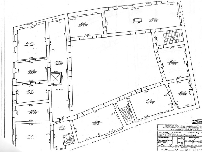
9)	Внутренние  помещения,  наружные террасы,  лестницы,  внутренний двор, арочный проход, мансардная часть ~ 2.340 м2
      10)	Площадь земельного участка (частная собственность) - 785 м2


По состоянию на настоящее время выполнены следующие виды работ:
1)	Ликвидировано аварийное состояние зданий
2)	Выполнены археологические работы
3)	Выполнены полностью реставрационные работы
4)	Работы по исследованию и восстановлению фресок
5)	Ручные земляные работы под зданиями глубиной до 4-х метров и вывозом грунта
6)	Устройство новых бетонных фундаментов под стенами зданий глубиной до 4-х метров, реконструкция старых фундаментов
7)	Устройство монолитных железобетонных перекрытий вручную, площадью ~ 2.300 м2
8)	Устройство черепичной кровли с мансардой и окнами
9)   Наружные телефонные сети

10)	Изготовление и установка наружных окон по старинным чертежам
11)	Фасадные отделочные работы
12)	Частично наружные работы по ливневой канализации, водопроводу, энергосетям, городскому благоустройству

Назначение зданий в данный момент может быть согласовано по просьбе заказчика.


Контактная информация:Вильнюс,Телефон: +37068205991 Ельвира,+37061223388 Руслана. Электронная почта: gaono.g.4@gmail.com
  • Location:
Country:Lithuania
State:Vilnius County
City:Vilnius
Property Type:Commercial
  • Characteristics
Rooms:40
Living Area (m2):2340
  • Facilities
Window View:Of the Old Town

8 700 000 €

10 216 259 $
775 346 168 ₽

On the map

Other properties of this seller